Interempresas.net

Inmobiliaria industrial
  1. Oficinas y Locales
  2. Locales en alquiler en L'Hospitalet de Llobregat
  3. Oferta Local en alquiler [2895] L'Hospitalet de Llobregat Pablo Iglesias

Detalles de oferta de Local en alquiler [2895] (0/3301029)

ClasificaciónBarcelonès / Barcelona (Locales alquiler)
NombreLocal en alquiler [2895]
Referencia cliente2895-A
MunicipioL'Hospitalet de Llobregat
DirecciónPablo Iglesias
Superficie336 m2
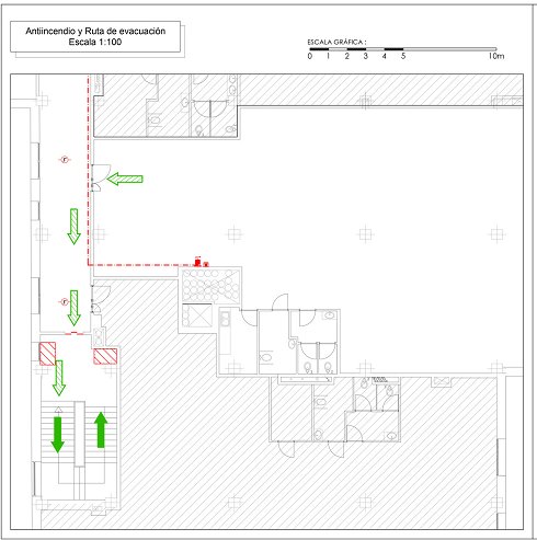
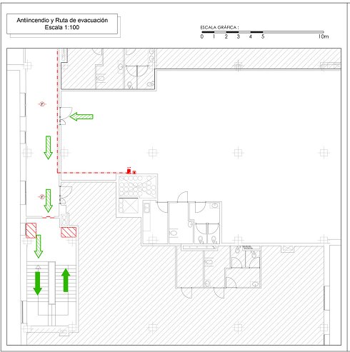
DetallesLocal 2 en Planta Segunda situado en un edificio en L'Hospitalet de Llobregat. Se encuentra a unos 400 mts. de la Fira de Barcelona. Muy bien comunicado por transporte público (Metro y Ferrocarriles). Construido en hormigón armado, con paredes de ladrillo gero y la zona de aseos y zona office con paredes en cartón yeso. El pavimento es un suelo técnico elevado desmontable y registrable por donde pasan las instalaciones eléctricas del local, desde el cuadro general ubicado en la entrada del local. Instalación de agua, climatización y ventilación. Instalación eléctrica completa, Fibra óptica en todo el edificio. Dispone de 2 baños, un baño para minusválidos y zona office. Sistema contraincendios (Bie's, detectores de humo) y una ruta de evacuación señalada a lo largo de todo el edificio, planta por planta.El acceso al edificio puede ser por la entrada principal situada en la esquina de calle Pablo Iglesias esquina Avda. Juan Carlos I. Cuenta con otra entrada en la calle Pablo Iglesias ubicada en la esquina norte del edificio. Zona de aparcamiento privado ubicado en la planta sótano, con entrada por la calle Pablo Iglesias.Parking en el edificio. Aseos. Luminarias. Aire acondicionado. Protección incendios. Instalación eléctrica. Instalación agua. Fachada 2 calles. Superficie diáfana
Precio 2.856 EUR   Ha bajado 504 EUR
Año
Última modificación de la información30/01/2026 1:40:51

Contacto

Información
Teléfono+34--934 152 121
Correo-enci@nci2003.com
EmpresaVer stand virtual de la empresa

Fotografías

  • Fotografía de Local en alquiler  [2895]
  • Fotografía de Local en alquiler  [2895]
  • Fotografía de Local en alquiler  [2895]
  • Fotografía de Local en alquiler  [2895]
  • Fotografía de Local en alquiler  [2895]