Interempresas.net

Inmobiliaria industrial
  1. Naves industriales
  2. Naves en alquiler en Granollers
  3. Oferta Nave industrial en alquiler [2091] Granollers Londres, 18

Detalles de oferta de Nave industrial en alquiler [2091] (0/3307092)

ClasificaciónVallès Oriental / Barcelona (Naves alquiler)
NombreNave industrial en alquiler [2091]
Referencia cliente2091-A
MunicipioGranollers
PolígonoLondres, 18
Superficie11.671 m2
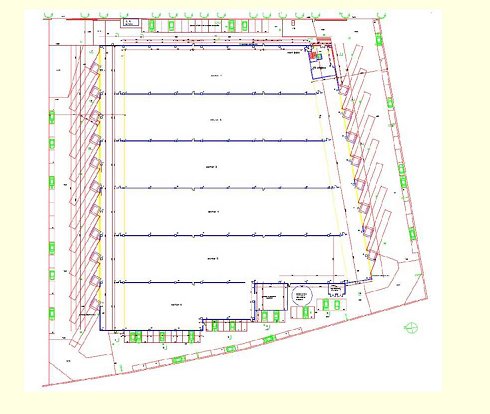
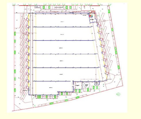
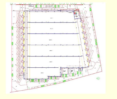
DetallesNave Industrial de reciente construcción (año 2018), situada en el Polígono Palou Nord de Granollers. Buenas comunicaciones mediante la Autovía C-17 y las Autopistas C-33 y AP-7. Dispone de un sector dedicado a producción de 6.465,04 m2 en riesgo bajo 1 y 3 sectores de almacén de 883,53 m2, 963,93 m2 y 745,29 m2 en riesgo medio 5. El diseño inicial de la nave preveía 19 muelles de carga, solo se ejecutaron 3, pero se pueden recuperar una parte de los previstos. Se está valorando la posibilidad de preparar toda la nave para riesgo alto con la instalación de rociadores, depósito y bombas. Estructura y cerramientos de hormigón. Cubierta tipo Deck. 3 muelles de carga. 3 puertas TIR. Iluminación LED. Seguridad contraincendios (Bie's). Sala carga para toros. Sala bombas Bie's. Depósitp Bie's. La nave dispone de ascensor de 6 plazas. Vestidores y aseos para hombres y mujeres. Comedor. Certificado eficiencia energética "A". Instalación de datos y de telefonía. Climatización (bomba de calor). ET propia. LA NAVE ESTARÁ DISPONIBLE A PARTIR DEL 1 DE MAYO 2026.Nave aislada C. Muelle carga y descarga. Ascensor. Oficinas. Divisiones en oficinas. Comedor. Aseos. Vestuarios. Luminarias. Calefacción nave. Seguridad Contraincendios. Patios parking. Electricidad. Agua. Teléfono. Estructura hormigón. Puerta TIR. Bie´s
Precio 79.363 EUR
Año
Última modificación de la información27/11/2025 1:40:51

Contacto

Información
Teléfono+34--934 152 121
Correo-enci@nci2003.com
EmpresaVer stand virtual de la empresa

Fotografías

  • Fotografía de Nave industrial en alquiler  [2091]
  • Fotografía de Nave industrial en alquiler  [2091]
  • Fotografía de Nave industrial en alquiler  [2091]
  • Fotografía de Nave industrial en alquiler  [2091]
  • Fotografía de Nave industrial en alquiler  [2091]